견적리스트 배너
59㎡ 양식레스토랑 인테리어
견적번호 30277251201
견적분류 실시간 견적
공사분류 카페/식당
인테리어 수준 보통
진행현황 견적마감
견적분류 일반견적
의뢰자명 강○○
연락처 010-***-****
시공지 주소 서울 노원구  ******
시공지 면적 18 실면적(PY) / 59.4 ㎡
시공예상일 2025-12-22 날짜미정
희망예산 2,800만원 업체협의
파일첨부
요청사항 [양식레스토랑 유럽골목의 느낌]

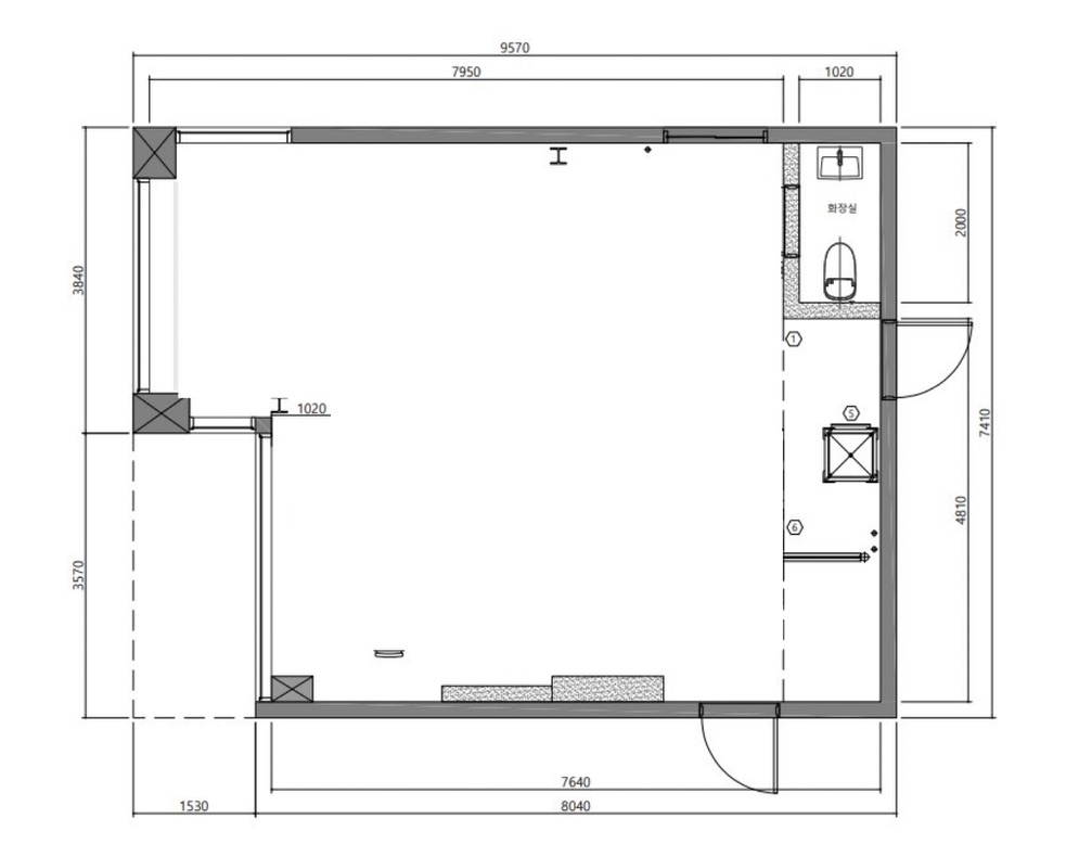
리모댈링 건물 2층 공실입니다.실평수(18평)
오픈주방 습식주방.(트렌치·그리스트랩) 설비해야 합니다.
홀 바닥은 자연석 시공
벽은 유럽식미장 및 자연석 시공

업종은 양식 레스토랑입니다.

그리고 컨셉은 유럽거리 같은 느낌을 주는 인테리어를 원합니다...

(가게명이 프라스어 로 작은골목이라는 느낌) 컨셉 이미지사진은 챗지피티 이용해서 대략적으로 이런컨셉을 원합니다. 외국 골목느낌이 감성이 묻어나는걸 원합니다
번호 견적번호 견적분류 제목 지역 진행현황
21808 30287251202 일반견적 주거공간 122㎡ 아파트 리모델링

서울 중구

견적진행
21807 30286251202 일반견적 주거공간 116㎡ 다세대주택 인테리어

서울 중구

견적진행
21806 30285251202 일반견적 매장/상업 33㎡ 상품권 판매장 인테리어

서울 영등포구

견적진행
21805 30284251202 일반견적 학원/교육 76㎡ 독서 논술학원 인테리어

경기 김포시

견적진행
21804 30283251202 일반견적 주거공간 254㎡ 아파트 인테리어

서울 광진구

견적마감
21803 30282251202 일반견적 주거공간 36㎡ 오피스텔 원룸 인테리어

서울 동대문구

견적진행
21802 30281251202 일반견적 주거공간 155㎡ 아파트 인테리어

경기 고양시

견적진행
21801 30280251202 일반견적 주거공간 79㎡ 아파트 인테리어

경기 화성시

견적진행
21800 30279251201 일반견적 주거공간 182㎡ 아파트 인테리어

경기 수원시

견적마감
21799 30278251201 일반견적 사무/오피스 215㎡ 사무실 인테리어

경기 성남시

견적마감